odliczanie start!!
Wniosek o pozwolenie na budowę złożony!!!!:)) Co za radość:)) Wczoraj złożyliśmy (mam nadzieję wszystkie) dokumenty w naszym wspaniałym starostwie. Teraz pozostaje nam tylko zaciskać kciuki i.... obgryzać paznokcie;)
Nasza cała papierologia składała sie z:
- wniosku o pozwolenie na budowę domu, tudzież garażu
- zaświadczenia o posiadanym prawie do dysponowania nieruchomością
- decyzji o wyłączeniu działki z produkcji rolnej
- decyzji o lokalizacji zjazdu
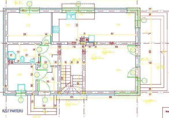
- projektu domu w 4 egz.
- projektu garażu w 4 egz.
- projektu zagospodarowania działki w 4 egz.
- zaświadczenia z zakładu wodno- kanalizacyjnego o możliwości wykonania przyłącza
- warunków przyłącza energetycznego
- wypisu i wyrysu z planu zagospodarowania przestrzennego
- wypisu w rejestru gruntów
A dziś..
zaczynamy poszukiwania materiałów i przede wszystkim kierownika budowy
Jesteście w stanie kogoś polecić z okolic Warszawy -Kogoś niedrogiego aczkolwiek porządnego??




. ( trzeba przyznać, że nie zapłacimy mu majątku za tą adaptację )
...
.
Komentarze